Non-CUW intern summer housing

Concordia is pleased to offer dorm-style housing for companies in the Milwaukee area who hire summer interns. A company may reserve 4-person single gender suites for the summer term (May 18- July 27, 2025), subject to availability.

The company will be billed at the time of reservation. We will work with the interns to give them access and keys.

Non-CUW Intern Summer Housing Overview

Reserve a Suite Vehicle Registration Intern Registration

Quick facts

4 Bedrooms

Coburg Hall is suite-style. Each suite is made up of four individual bedrooms and a shared living space.

1 Bathroom

Each suite has an exposed sink area, shower room and toilet room.

Amenities

This hall is air-conditioned. Each suite features a refrigerator and microwave in the shared living space. Access to free Laundry and WiFi.

Kitchen

Hall kitchens are available on floors 2-5.

  • Coburg residence hall overlooking Lake Michigan.
    Coburg residence hall overlooking Lake Michigan.
  • A student’s room in one of the Coburg suites.
    A student’s room in one of the Coburg suites.
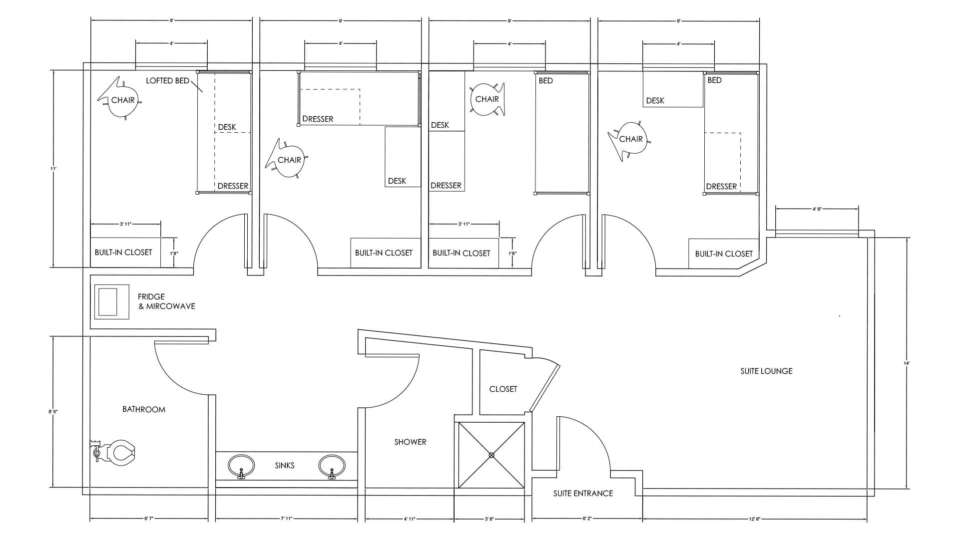
  • A floor plan of one of the Coburg suites.
    A floor plan of one of the Coburg suites.
  • The Coburg balcony overlooking Lake Michigan.
    The Coburg balcony overlooking Lake Michigan.
  • A Coburg kitchen complete with stove, toaster, sink, and microwave.
    A Coburg kitchen complete with stove, toaster, sink, and microwave.

Note

  • Transportation: our campus is not on a public transit route, so personal transportation is necessary.
  • Policies: CUW is a dry campus. No alcohol allowed. No pets. No smoking. No overnight guests.

Cost

$16,000 for an entire 4-person suite for the Summer Term. Each intern submits a $300 deposit refundable after check-out, less any damages.

Questions

Questions can be directed to Residence Life via email: residence.life@cuw.edu.